lot 10-1 Bay Road

Farmington, NH 03835
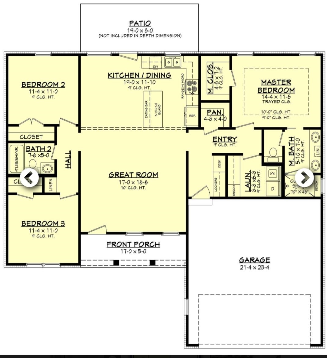
Beds
3
Baths
2
Square Ft.
1,416
$580,000
Single level living at it's best - don't wait! Here's your chance to customize a build on 1.25 acre lot in a country setting abutting 210 acres of conservation land. Proposed ranch has an inviting Farmers porch, 3 bedrooms, 2 baths and 2 car attached garage as well as anRead MoreRead Less
Courtesy of Heather Berberian, Hometown Property Group 603-333-0070
Listing Snapshot
Days Online
345
Last Updated
Property Type
Single Family
Beds
3
Full Baths
2
Square Ft.
1,416
Lot Size
1.25 Acres
MLS Number
5041863

Source: Home Junction

30 Days Snapshot Of 03835
$397k
+22%
(avg) sold price
6
+100%
homes sold
26
-65%
(avg) days on market
Snapshot
Area Map
Additional Details
Property Access
Road Frontage: Yes
Building
Basement: Yes, 5 rooms, 1,416 total finished sqft, Total stories: 1, Construction status: Pre-Construction, 1,416 unfinished sqft below grade, 1,416 finished sqft above grade
Roof
Architectural Shingle
Basement
Basement access: Walkout, Concrete
Heating
Forced Air
Cooling
Central AC
Utilities
Electric: 200+ Amp Service, Circuit Breaker(s)
Garage
Garage: Yes, Garage capacity: 2
Lot
1.25 acres, 2,832 approx. sqft, 54,450 sqft
Parking
Driveway: Paved
Property
Flood Zone: Unknown, Zoning: Rural Residential, Seasonal: No
Sewer
Private
Find The Perfect Home

'VIP' Listing Search

Whenever a listing hits the market that matches your criteria you will be immediately notified.

Join The List
Mortgage Calculator

Source: Home Junction

Monthly Payment
$0
John Moscillo
Agent profile image

Schools In The Area

Source: Home Junction
Check out nearby schools with ratings and contact info.

Similar Listings

View More Listings

This information is deemed reliable, but not guaranteed. The data relating to real estate displayed on this Site comes in part from the IDX Program of PrimeMLS. The information being provided is for consumers' personal, non-commercial use and may not be used for any purpose other than to identify prospective properties consumers may be interested in purchasing. Data last updated .
Data last updated .