207 Farmall Drive

Hinesburg, VT 05461
Beds
3
Baths
3
Square Ft.
1,996
$450,000
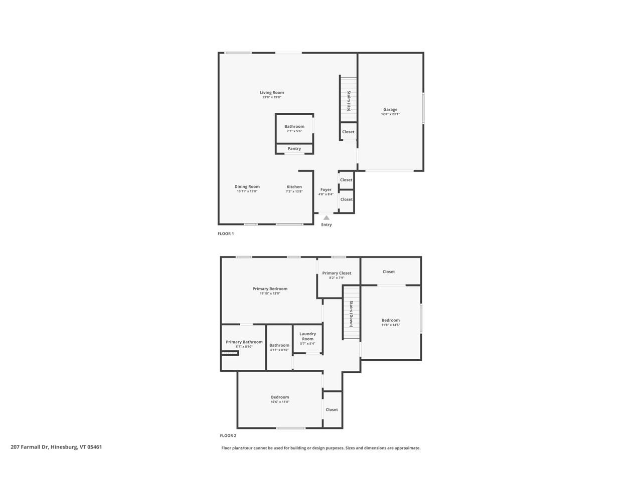
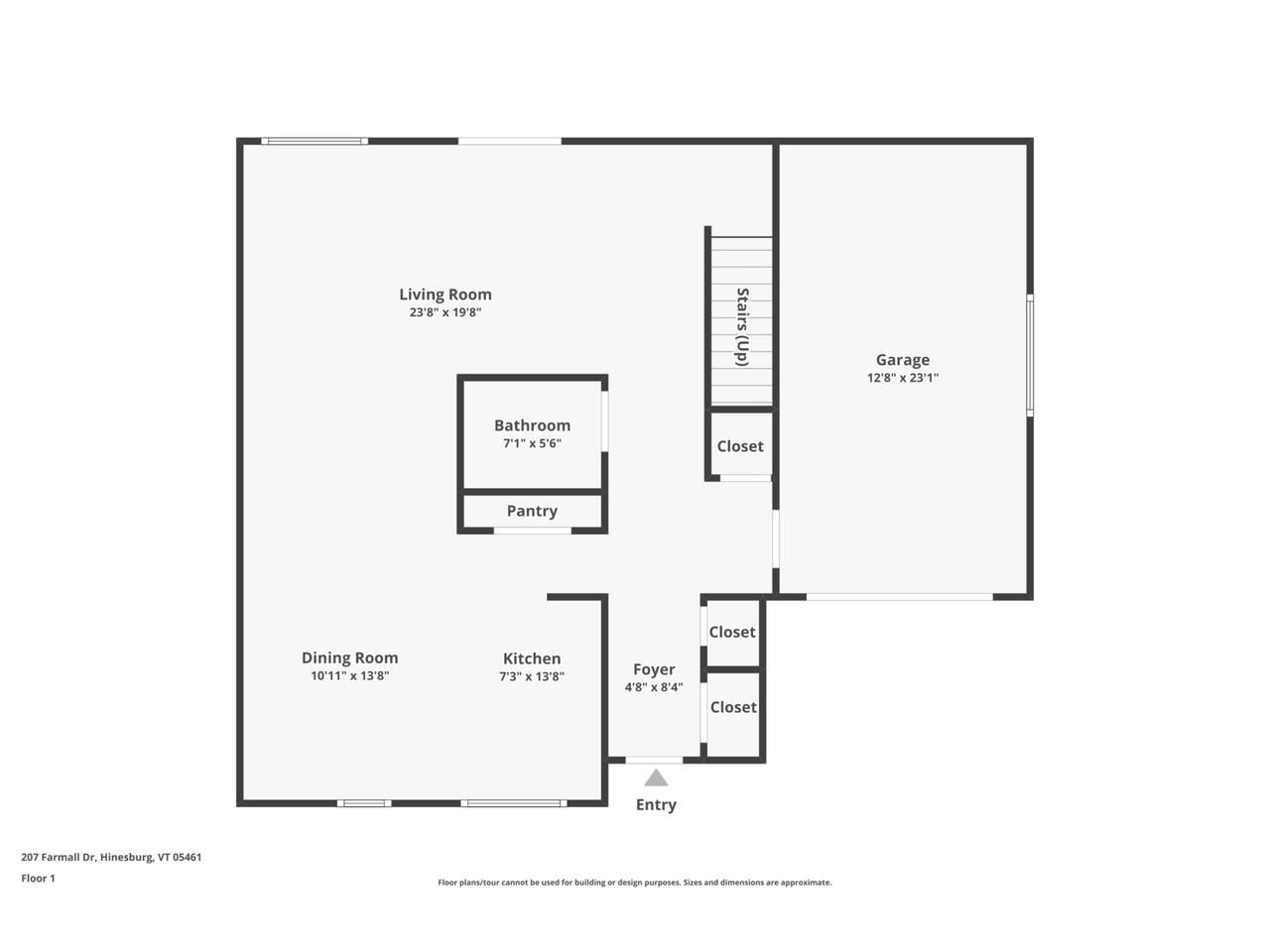
Welcome to this spacious, 3-bed, 3-bath end-unit townhouse in the desirable Creekside neighborhood of Hinesburg! Enter from the covered front porch into a mudroom with coat closet and utility room. The main level features walnut laminate flooring, an open living area, and sunny eat-in kitchen with matching appliances, ample cabinetry,Read MoreRead Less
Courtesy of Lipkin Audette Team, Coldwell Banker Hickok and Boardman Phone: 802-846-8800
Listing Snapshot
Days Online
242
Last Updated
Property Type
Condo
Beds
3
Full Baths
2
Partial Baths
1
Square Ft.
1,996
Year Built
2005
MLS Number
5061367

Source: Home Junction

30 Days Snapshot Of 05461
$583k
-4%
(avg) sold price
3
-25%
homes sold
8
-84%
(avg) days on market
Snapshot
Area Map
Additional Details
Property Access
Road Frontage: No
Building
Basement: No, 6 rooms, Built in 2005, 1,996 total finished sqft, Total stories: 2, Construction status: Existing, 1,996 finished sqft above grade
Roof
Asphalt Shingle
Floors
Carpet, Laminate, Tile
Appliances & Equipment
Dishwasher, Disposal, Dryer, Range Hood, Microwave, Electric Range, Refrigerator, Washer
Heating
Natural Gas, Baseboard, Hot Water, Multi Zone
Cooling
None
Utilities
Electric Company: Green Mountain Power, Phone Company: Comcast, Electric: Circuit Breaker(s)
Fees
Fee: 220, Fee Frequency: Monthly, Fee Includes: Landscaping, Plowing, Trash, HOA Fee
Garage
Garage: Yes, Garage capacity: 1
Lot
1,996 approx. sqft
Parking
Driveway: Paved
Property
Units per building: 2, Flood Zone: Unknown, Zoning: Residential, Seasonal: No
Sewer
Public
Taxes
Gross amount: $6,788
Find The Perfect Home

'VIP' Listing Search

Whenever a listing hits the market that matches your criteria you will be immediately notified.

Join The List
Mortgage Calculator

Source: Home Junction

Monthly Payment
$0
John Moscillo
Agent profile image

Schools In The Area

Source: Home Junction
Check out nearby schools with ratings and contact info.

Similar Listings

View More Listings

This information is deemed reliable, but not guaranteed. The data relating to real estate displayed on this Site comes in part from the IDX Program of PrimeMLS. The information being provided is for consumers' personal, non-commercial use and may not be used for any purpose other than to identify prospective properties consumers may be interested in purchasing. Data last updated .
Data last updated .