2 Orchard Hill Road

Greenland, NH 03840
Beds
4
Baths
3
Square Ft.
3,530
$1,159,000
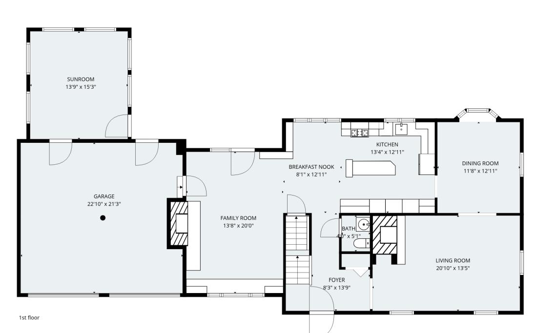
Located in Greenland's GREAT BAY NEIGHBORHOOD, this 4BR/3BA well maintained Colonial offers a thoughtfully updated living environment. With 2578 sf of main living space and a total of 3500 sf including the lower level, this lovely home has benefited from numerous improvements in recent years including hardwood flooring, windows, newRead MoreRead Less
Courtesy of Cheryl Dinardo, The Aland Realty Group 603-501-0463
Listing Snapshot
Days Online
94
Last Updated
Property Type
Single Family
Beds
4
Full Baths
2
Partial Baths
1
Square Ft.
3,530
Lot Size
1.47 Acres
Year Built
1986
MLS Number
5074015

Source: Home Junction

30 Days Snapshot Of 03840
$387k
0%
(avg) sold price
0
-100%
homes sold
5
0%
(avg) days on market
Snapshot
Area Map
Additional Details
Property Access
Road Frontage: Yes
Building
Basement: Yes, 10 rooms, Built in 1986, 3,530 total finished sqft, Total stories: 2, Construction status: Existing, 273 unfinished sqft below grade, 2,578 finished sqft above grade, 952 finished sqft below grade
Roof
Architectural Shingle
Basement
Basement access: Walkout, Finished
Floors
Carpet, Ceramic Tile, Hardwood, Vinyl Plank
Appliances & Equipment
Dishwasher, Dryer, Range Hood, Microwave, Wall Oven, Refrigerator, Washer, Domestic Water Heater, Water Heater off Boiler, Oil Water Heater, Owned Water Heater, Separate Water Heater, Tank Water Heater, Heat Pump Water Heater, Warming Drawer, Dual Fuel Range, Exhaust Fan, Vented Exhaust Fan, Water Heater
Heating
Oil, Solar, Baseboard, Electric, Hot Water, Multi Zone, Mini Split, Boiler
Cooling
Multi Zone, Mini Split
Water Features
Water body type: Bay
Utilities
Electric Company: Eversource, Electric: 200+ Amp Service, Circuit Breaker(s), Generator Ready, Underground
Garage
Garage: Yes, Garage capacity: 4
Lot
1.47 acres, 3,803 approx. sqft, 64,033 sqft
Parking
Driveway: Gravel, Paved
Property
Flood Zone: No, Zoning: RES, Seasonal: No
Sewer
1000 Gallon, Leach Field, Private, Septic
Taxes
Gross amount: $11,287
Find The Perfect Home

'VIP' Listing Search

Whenever a listing hits the market that matches your criteria you will be immediately notified.

Join The List
Mortgage Calculator

Source: Home Junction

Monthly Payment
$0
John Moscillo
Agent profile image

Schools In The Area

Source: Home Junction
Check out nearby schools with ratings and contact info.

Similar Listings

View More Listings

This information is deemed reliable, but not guaranteed. The data relating to real estate displayed on this Site comes in part from the IDX Program of PrimeMLS. The information being provided is for consumers' personal, non-commercial use and may not be used for any purpose other than to identify prospective properties consumers may be interested in purchasing. Data last updated .
Data last updated .