27 Melrose Drive

Rochester, NH 03868
Beds
2
Baths
1
Square Ft.
789
$149,900
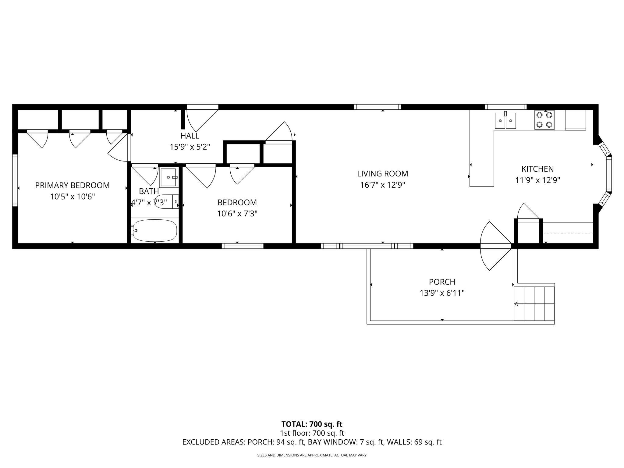
Welcome home to 27 Melrose Drive, located in the desirable Ridgewood Park community. This beautifully updated 2004 Skyline mobile home offers comfort, style, and low-maintenance living—an ideal opportunity for those seeking an affordable, move-in-ready home in a convenient location. The home features two spacious bedrooms and one full bathroom inRead MoreRead Less
Courtesy of Danica Billado, KW Coastal and Lakes & Mountains Realty 603-610-8500
Listing Snapshot
Days Online
87
Last Updated
Property Type
Mobile Home
Beds
2
Full Baths
1
Square Ft.
789
Year Built
2003
MLS Number
5074517

Source: Home Junction

30 Days Snapshot Of 03868
$486k
+64%
(avg) sold price
5
-61%
homes sold
17
-48%
(avg) days on market
Snapshot
Area Map
Additional Details
Property Access
Road Frontage: TBD
Building
Basement: No, 4 rooms, Built in 2003, 789 total finished sqft, Total stories: 1, Construction status: Existing, 789 finished sqft above grade
Roof
Asphalt Shingle
Floors
Carpet, Laminate
Appliances & Equipment
Dishwasher, Microwave, Refrigerator, Electric Stove
Heating
Forced Air
Cooling
Central AC
Utilities
Electric: 100 Amp Service
Fees
Fee: 545, Fee Frequency: Monthly, Fee Includes: Sewer, Trash, Water, Park Rent
Garage
Garage: No
Lot
789 approx. sqft
Parking
Driveway: Paved
Property
Mobile park approval: Yes, Flood Zone: No, Zoning: A, Owned Land: No, Seasonal: No
Sewer
Private
Taxes
Gross amount: $1,243
Find The Perfect Home

'VIP' Listing Search

Whenever a listing hits the market that matches your criteria you will be immediately notified.

Join The List
Mortgage Calculator

Source: Home Junction

Monthly Payment
$0
John Moscillo
Agent profile image

Schools In The Area

Source: Home Junction
Check out nearby schools with ratings and contact info.

Similar Listings

View More Listings

This information is deemed reliable, but not guaranteed. The data relating to real estate displayed on this Site comes in part from the IDX Program of PrimeMLS. The information being provided is for consumers' personal, non-commercial use and may not be used for any purpose other than to identify prospective properties consumers may be interested in purchasing. Data last updated .
Data last updated .