33 Lucy Lane

Peterborough, NH 03458
Beds
2
Baths
2
Square Ft.
1,115
$310,000
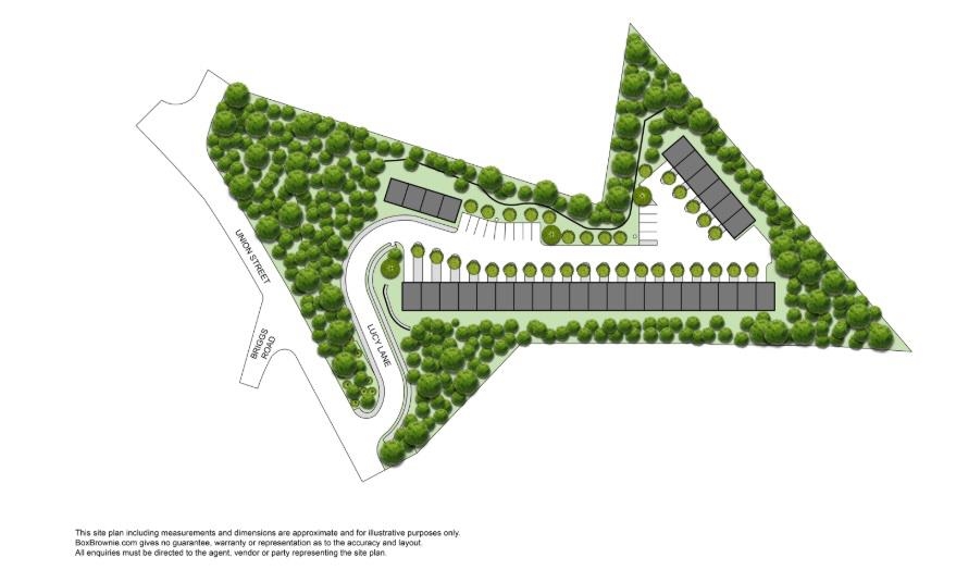
Welcome to Our Town Village, a brand-new townhome community coming to Peterborough, New Hampshire, with first homes ready for occupancy in Spring 2026. Designed for comfort, style, and energy efficiency, these 2-bedroom, 1.5-bath townhomes combine modern finishes with a low-maintenance lifestyle in the heart of the Monadnock Region. The open-conceptRead MoreRead Less
Courtesy of Sadie Halliday, EXP Realty Cell: 603-660-2321
Listing Snapshot
Days Online
76
Last Updated
Property Type
Condo
Beds
2
Full Baths
1
Partial Baths
1
Square Ft.
1,115
Year Built
2026
MLS Number
5076255

Source: Home Junction

30 Days Snapshot Of 03458
$387k
-5%
(avg) sold price
4
-42%
homes sold
44
-24%
(avg) days on market
Snapshot
Area Map
Additional Details
Property Access
Road Frontage: TBD
Building
Basement: No, 6 rooms, Built in 2026, 1,115 total finished sqft, Total stories: 2, Construction status: New Construction, 480 unfinished sqft above grade, 1,115 finished sqft above grade
Roof
Asphalt Shingle
Floors
Carpet, Vinyl Plank
Appliances & Equipment
Dishwasher, Dryer, Microwave, Electric Range, Refrigerator, Washer
Heating
Electric, Heat Pump
Cooling
Central AC
Utilities
Electric: 200+ Amp Service, Circuit Breaker(s)
Fees
Fee: 200, Fee Frequency: Monthly, Fee Includes: Landscaping, Plowing
Garage
Garage: Yes, Garage capacity: 1
Lot
1,595 approx. sqft
Parking
Driveway: Paved
Property
Units per building: 20, Flood Zone: No, Zoning: Res, Seasonal: No
Sewer
Public
Find The Perfect Home

'VIP' Listing Search

Whenever a listing hits the market that matches your criteria you will be immediately notified.

Join The List
Mortgage Calculator

Source: Home Junction

Monthly Payment
$0
John Moscillo
Agent profile image

Schools In The Area

Source: Home Junction
Check out nearby schools with ratings and contact info.

Similar Listings

View More Listings

This information is deemed reliable, but not guaranteed. The data relating to real estate displayed on this Site comes in part from the IDX Program of PrimeMLS. The information being provided is for consumers' personal, non-commercial use and may not be used for any purpose other than to identify prospective properties consumers may be interested in purchasing. Data last updated .
Data last updated .