850 Laconia Road

Tilton, NH 03276
Baths
1
Square Ft.
324
$249,000
Lake Winnisquam studio condo rare find with your own assigned 20-ft boat slip, lake access and mountain views—priced to sell. Turnkey, fully furnished, and ideal for short-term rental or personal use. Well-maintained, exceptionally clean—move-in ready. Interior includes a king-size Murphy bed, electric reclining sofa, wall-mounted TV, and full kitchen withRead MoreRead Less
Courtesy of Derek Greene, Derek Greene 860-560-1006
Listing Snapshot
Days Online
30
Last Updated
Property Type
Condo
Full Baths
1
Square Ft.
324
Year Built
1960
MLS Number
5080189

Source: Home Junction

30 Days Snapshot Of 03276
$523k
+28%
(avg) sold price
2
-33%
homes sold
57
+612%
(avg) days on market
Snapshot
Area Map
Additional Details
Property Access
Road Frontage: No
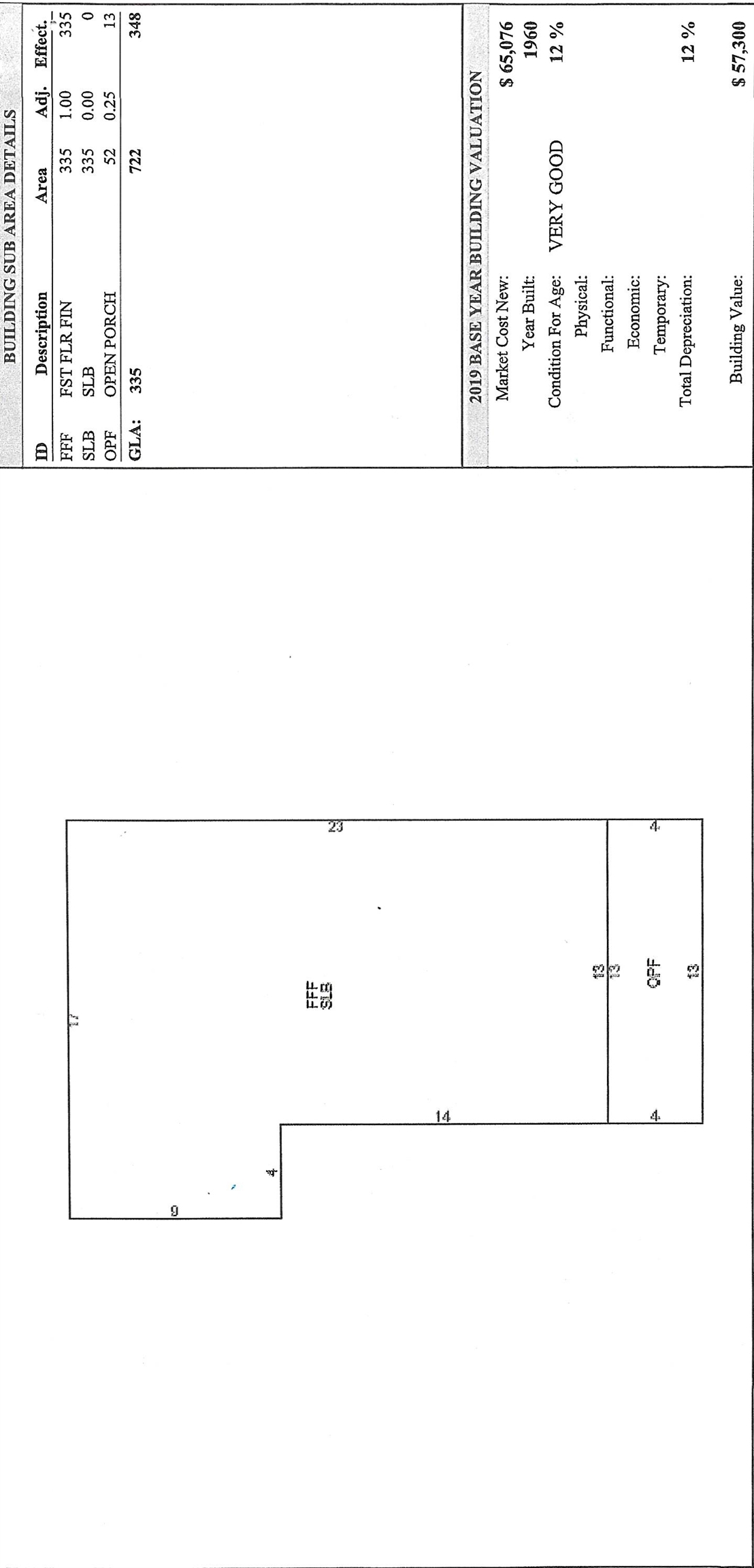
Building
Basement: No, 2 rooms, Built in 1960, 324 total finished sqft, Total stories: 1, Construction status: Existing, 324 finished sqft above grade
Roof
Metal
Floors
Ceramic Tile, Laminate
Appliances & Equipment
Dishwasher, Microwave, Refrigerator, Electric Stove
Heating
Heat Pump
Cooling
Other
Water Features
Water restrictions: Unknown, Water body type: Lake
Utilities
Electric: 100 Amp Service
Fees
Fee: 114, Fee Frequency: Monthly, Fee Includes: Condo Association Fee
Garage
Garage: No
Lot
324 approx. sqft
Parking
Driveway: Paved
Property
Units per building: 8, Flood Zone: No, Zoning: RESORT, Seasonal: No
Sewer
Public
Taxes
Gross amount: $2,771
Find The Perfect Home

'VIP' Listing Search

Whenever a listing hits the market that matches your criteria you will be immediately notified.

Join The List
Mortgage Calculator

Source: Home Junction

Monthly Payment
$0
John Moscillo
Agent profile image

Schools In The Area

Source: Home Junction
Check out nearby schools with ratings and contact info.

Similar Listings

View More Listings

This information is deemed reliable, but not guaranteed. The data relating to real estate displayed on this Site comes in part from the IDX Program of PrimeMLS. The information being provided is for consumers' personal, non-commercial use and may not be used for any purpose other than to identify prospective properties consumers may be interested in purchasing. Data last updated .
Data last updated .