47 Stacy Street

Milton, VT 05468
Beds
3
Baths
3
Square Ft.
2,808
$599,000
Welcome to this beautifully maintained and thoughtfully updated home in a sought-after Milton neighborhood. Offering a perfect blend of comfort, style, and functionality, this property is move-in ready and designed for both everyday living and effortless entertaining. Step inside to a bright, open-concept main level filled with natural light. TheRead MoreRead Less
Courtesy of Robert Foley, Flat Fee Real Estate 802-318-0833
Listing Snapshot
Days Online
4
Last Updated
Property Type
Single Family
Beds
3
Full Baths
2
Partial Baths
1
Square Ft.
2,808
Lot Size
0.46 Acres
Year Built
1999
MLS Number
5083871

Source: Home Junction

30 Days Snapshot Of 05468
$434k
+9%
(avg) sold price
16
+6%
homes sold
42
+5%
(avg) days on market
Snapshot
Area Map
Additional Details
Property Access
Road Frontage: Yes
Building
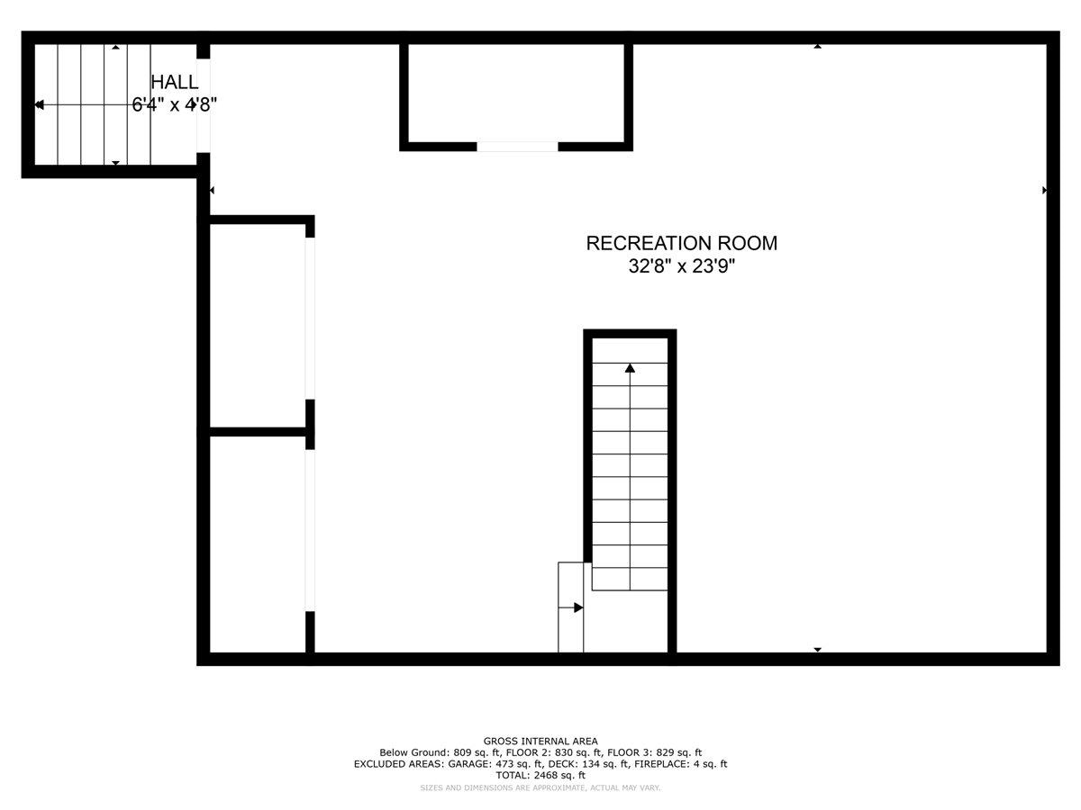
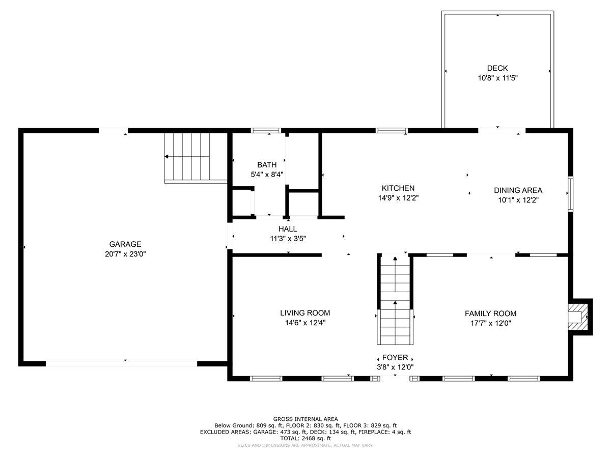
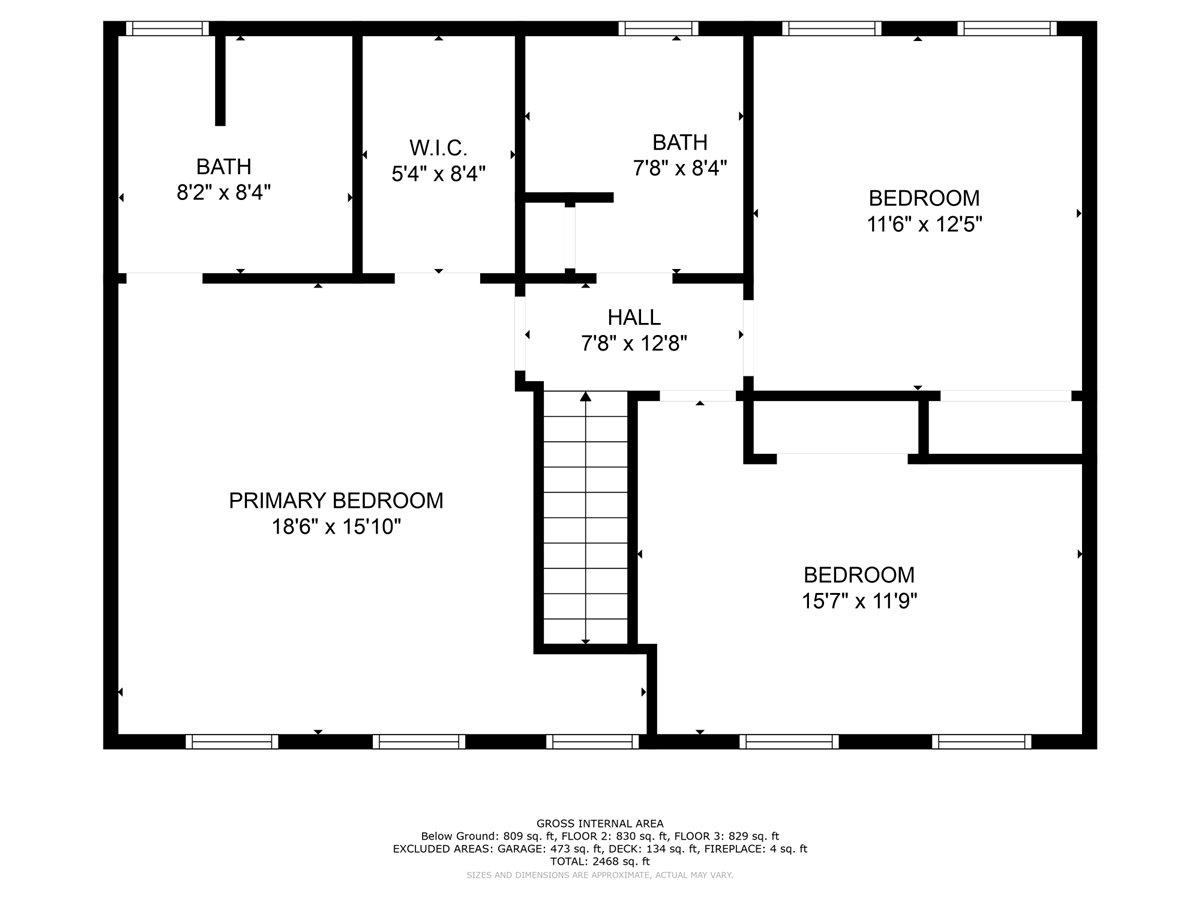
Basement: Yes, 6 rooms, Built in 1999, 2,808 total finished sqft, Total stories: 2, Construction status: Existing, 1,872 finished sqft above grade, 936 finished sqft below grade
Roof
Asphalt Shingle
Basement
Basement access: Interior, Finished
Floors
Carpet, Ceramic Tile, Hardwood
Appliances & Equipment
Dishwasher, Freezer, Microwave, Electric Range, Refrigerator, Washer, Natural Gas Water Heater, Gas Dryer
Heating
Natural Gas, Baseboard
Cooling
None
Utilities
Electric Company: GMP, Phone Company: Xfinity, Electric: Circuit Breaker(s), Generator
Garage
Garage: Yes, Garage capacity: 2
Lot
0.46 acres, 2,808 approx. sqft, 20,038 sqft
Parking
Driveway: Paved
Property
Flood Zone: No, Zoning: Residential, Seasonal: No
Sewer
Public
Taxes
Gross amount: $6,827
Find The Perfect Home

'VIP' Listing Search

Whenever a listing hits the market that matches your criteria you will be immediately notified.

Join The List
Mortgage Calculator

Source: Home Junction

Monthly Payment
$0
John Moscillo
Agent profile image

Schools In The Area

Source: Home Junction
Check out nearby schools with ratings and contact info.

Similar Listings

View More Listings

This information is deemed reliable, but not guaranteed. The data relating to real estate displayed on this Site comes in part from the IDX Program of PrimeMLS. The information being provided is for consumers' personal, non-commercial use and may not be used for any purpose other than to identify prospective properties consumers may be interested in purchasing. Data last updated .
Data last updated .